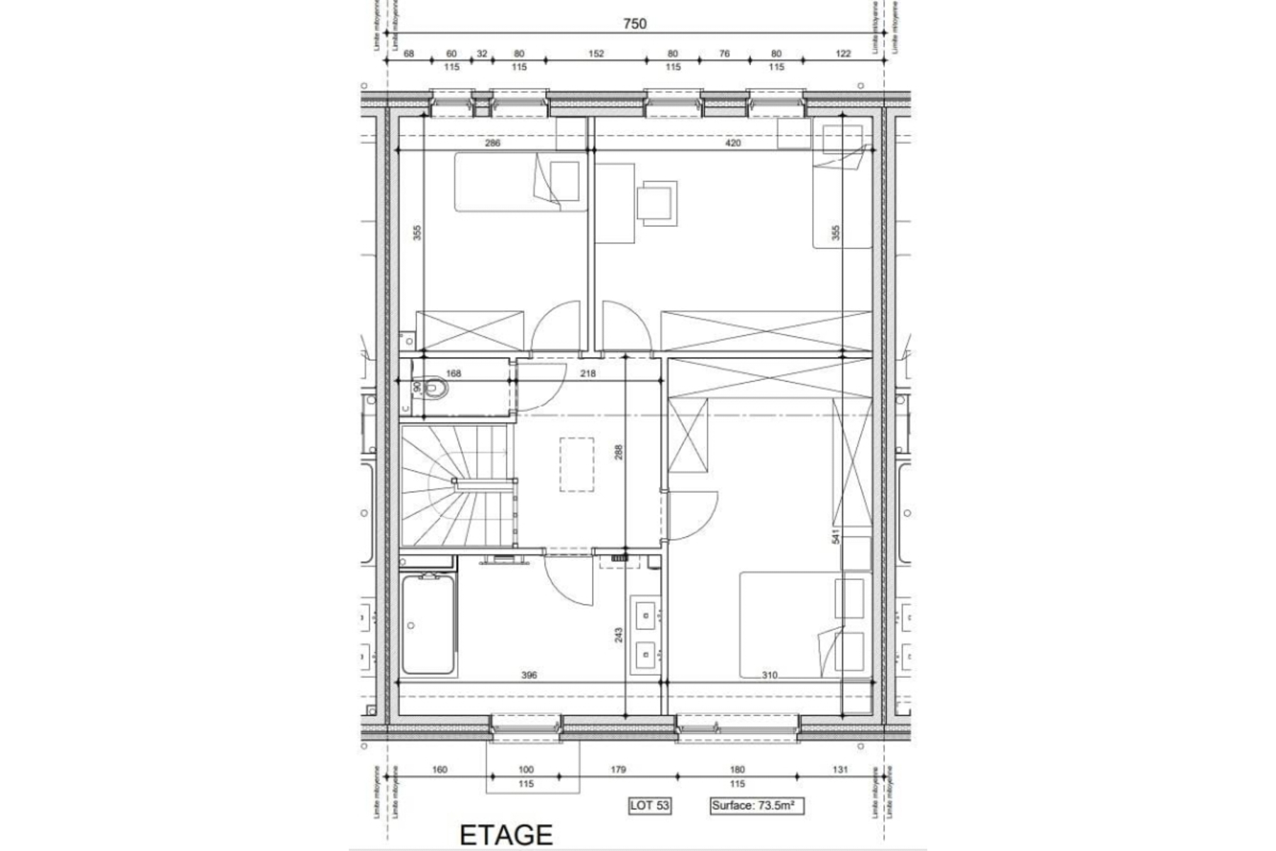
Découvrez cette maison située dans un quartier paisible, idéale pour les familles à la recherche de confort et de modernité. Avec une surface habitable de 147 m² sur un terrain de 334m², cette maison vous offre des espaces généreux et bien agencés. Cette maison orientée nord-est se distingue par ses 3 façades qui lui confèrent une luminosité naturelle exceptionnelle. Au rez-de-chaussée, vous trouverez un hall d’entrée avec un wc et une buanderie, un grand espace de vie qui donne accès à une belle terrasse en grenailles avec bordures. Le jardin est idéal pour profiter des beaux jours en toute tranquillité. A l’étage, les trois chambres sont parfaites pour accueillir votre famille ou pour aménager un bureau à domicile. La salle de douche moderne est conçue pour votre confort quotidien. Pour les amateurs d’énergies renouvelables, cette maison est équipée d’une citerne d’eau de pluie, de panneaux photovoltaïques, vous permettant de réaliser des économies d’énergie tout en respectant l’environnement. Le chauffage au sol au rez-de-chaussée, dans le hall de nuit et la salle de bain, alimenté par une chaudière au gaz, assure une chaleur douce et homogène dans toute la maison, garantissant un confort optimal. Contactez-nous dès aujourd’hui pour organiser une visite et découvrir tous les avantages que cette maison a à offrir ! Vous êtes intéressés par cette maison exceptionnelle ? Ne tardez pas à nous contacter au 0476/29.23.73 ou 0486/555.464 – immo@sotraba.be – Projet réalisé par Thomas & Piron Home
Pour obtenir les informations détaillées sur le prix de ce bien, veuillez vous adresser à notre représentant commercial.