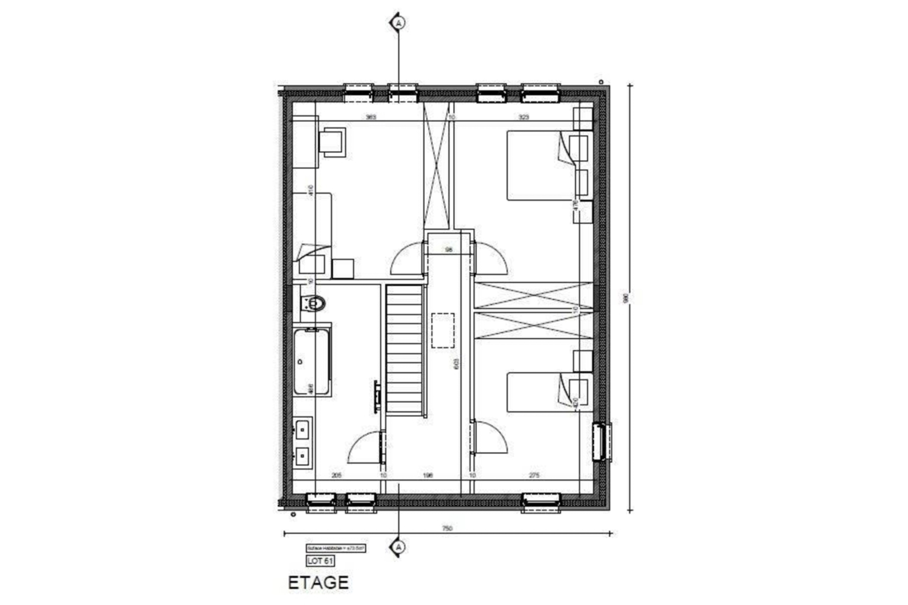
Découvrez cette maison située dans un quartier paisible, idéale pour les familles à la recherche de confort et de modernité. Avec une surface habitable de 147 m² sur un terrain de 532m², cette maison vous offre des espaces généreux et bien agencés. Cette maison 3 façades orientée nord-est lui confèrent une luminosité naturelle exceptionnelle. Elle se compose au rez-de-chaussée d’un hall d’entrée avec toilette, d’une buanderie, d’un grand et lumineux espace de vie composé du salon et d’une salle à manger avec accès au jardin. Vous pourrez ainsi profiter des beaux jours en toute tranquillité. La cuisine de vos rêves se trouve dans le prolongement de votre living. A l’étage, les trois chambres sont parfaites pour accueillir votre famille. La salle de douche moderne est conçue pour votre confort quotidien. Pour les amateurs d’énergies renouvelables, cette maison est équipée d’une citerne d’eau de pluie de 10 000L, de 8 panneaux photovoltaïques, vous permettant de réaliser des économies d’énergie tout en respectant l’environnement. Le chauffage au sol au rez-de-chaussée, dans le hall de nuit et la salle de bain, alimenté par une pompe à chaleur, assure une chaleur douce et homogène dans toute la maison, garantissant un confort optimal. Vous êtes intéressés par cette maison exceptionnelle ? Ne tardez pas à nous contacter au 0476/29.23.73 ou 0486/555.464 – immo@sotraba.be – Projet réalisé par Thomas & Piron Home
Pour obtenir les informations détaillées sur le prix de ce bien, veuillez vous adresser à notre représentant commercial.