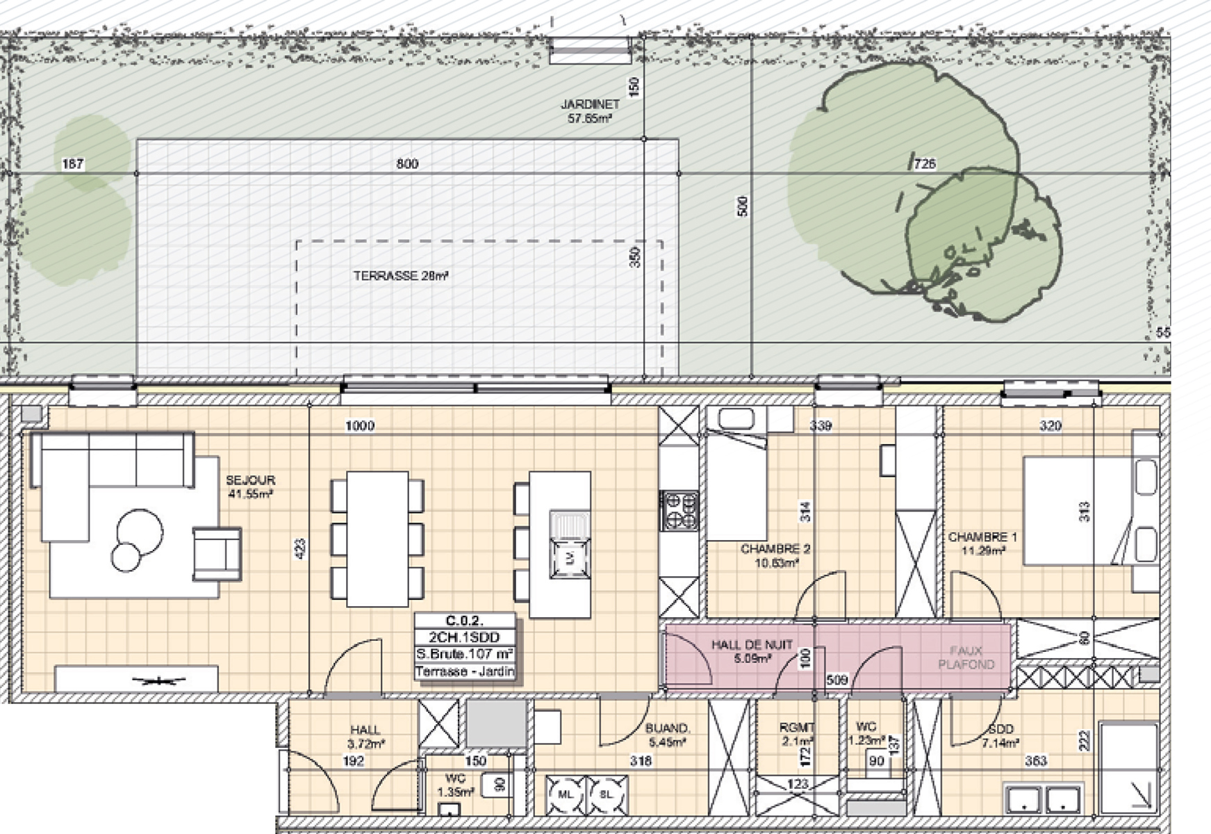
2 Résidences de 16 appartements de 1 à 3 chambres actuellement en construction dans un nouveau quartier qui fait la part belle au confort et à la qualité de vie. Chaque bâtiment fait référence à un Dieu du soleil. Le bâtiment A-B nommé « résidence Hélios » et le bâtiment C-D « résidence Théia ».
L’architecture y est homogène et la conception vise à fournir aux futurs acquéreurs un bien en phase avec la modernité et l’économie énergétique.LES AVANTAGES :
• Sous-sol pour bâtiment A-B (résidence Hélios)
• Jardins pour les appartements (sauf A.0.3) du rez-de-chaussée
• 1 à 3 chambres
• Environnement calmeUn cahier des charges attractif :
• Isolation acoustique soignée
• PEB classe A
• Isolation de qualité (14cm EPS graphité pour les murs en crépis, chape PU 10cm au rez et 22cm de laine minérale pour les toitures en pente)
• Châssis PVC avec double vitrage
• Carrelage pour toutes les pièces de vie et d’eau ainsi que pour les chambres • Installation sanitaire complète
• Installation électrique complète
• Chaudière individuelle au gaz à condensation
• Distribution de la chaleur par chauffage sol
• Cuisine pour un budget de 6500€ à 7500€ HTVA (selon les appartements) auprès de notre fournisseur agréé
• Système de ventilation motorisé
| Libellé | Prix HTVA | Frais (TVA / Droits enregistrement) | Prix TTC |
| Construction (Calcul 21%) | 220 375 € | 46 279 € | 266 654 € |
| Terrain (Calcul 12,5%) | 30 625 € | 3 828 € | 34 453 € |
| Raccordement (Calcul 21%) | 4 500 € | 945 € | 5 445 € |
Construction + Terrain + Raccordement (Hors frais de notaire) | 255 500 € | 51 052 € | 306 552 € |
* Le calcul des frais totaux est une estimation réalisée sur base des taux en vigueur au moment de la mise en vente du bien concerné.