CONDITIONS SALON !!
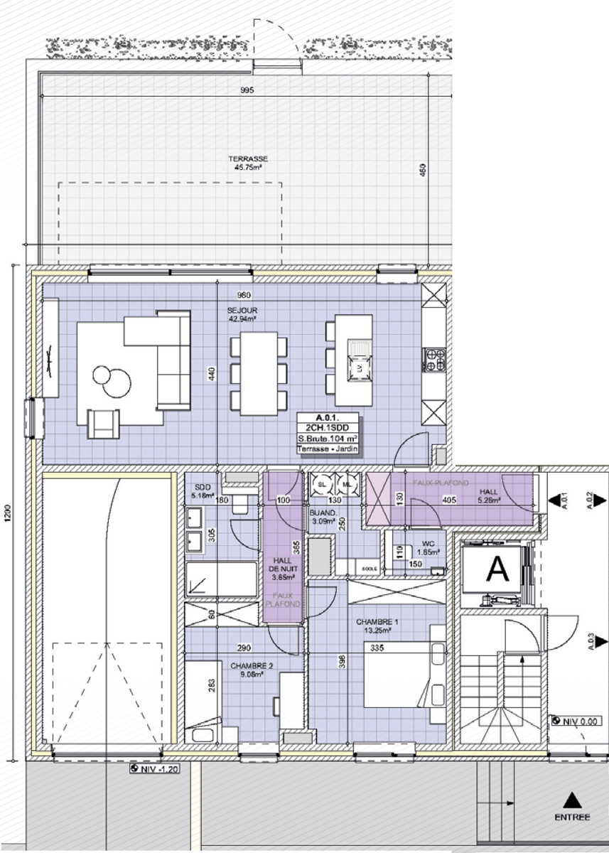
2 Résidences de 16 appartements de 1 à 3 chambres actuellement en construction dans un nouveau quartier qui fait la part belle au confort et à la qualité de vie. Chaque bâtiment fait référence à un Dieu du soleil. Le bâtiment A-B nommé « résidence Hélios » et le bâtiment C-D « résidence Théia ».
L’architecture y est homogène et la conception vise à fournir aux futurs acquéreurs un bien en phase avec la modernité et l’économie énergétique.LES AVANTAGES :
• Sous-sol pour bâtiment A-B (résidence Hélios)
• Jardins pour les appartements (sauf A.0.3) du rez-de-chaussée
• 1 à 3 chambres
• Environnement calmeUn cahier des charges attractif :
• Isolation acoustique soignée
• PEB classe A
• Isolation de qualité (14cm EPS graphité pour les murs en crépis, chape PU 10cm au rez et 22cm de laine minérale pour les toitures en pente)
• Châssis PVC avec double vitrage
• Carrelage pour toutes les pièces de vie et d’eau ainsi que pour les chambres • Installation sanitaire complète
• Installation électrique complète
• Chaudière individuelle au gaz à condensation
• Distribution de la chaleur par chauffage sol
• Cuisine pour un budget de 6500€ à 7500€ HTVA (selon les appartements) auprès de notre fournisseur agréé
• Système de ventilation motorisé
| Libellé | Prix HTVA | Frais (TVA / Droits enregistrement) | Prix TTC |
| Construction (Calcul 21%) | 225 875 € | 47 434 € | 273 309 € |
| Terrain (Calcul 12,5%) | 17 625 € | 2 203 € | 19 828 € |
| Raccordement (Calcul 21%) | 4 500 € | 945 € | 5 445 € |
Construction + Terrain + Raccordement (Hors frais de notaire) | 248 000 € | 50 582 € | 298 582 € |
* Le calcul des frais totaux est une estimation réalisée sur base des taux en vigueur au moment de la mise en vente du bien concerné.
Sauf en cas de promotion exceptionnelle, l’achat d’une cave ou d’un parking n’est pas inclus dans le prix de ce bien immobilier. Veuillez trouver ci-dessous les tarifs correspondants à ce projet immobilier et n’hésitez pas à contacter notre représentant commercial pour obtenir plus d’informations.
- Parking Intérieur Prix HTVA : 15 000 €